Palan pneumatic YALE CPA ATEX pentru minerit, BASIC Portanta 6000 kg
Cod produs: 192069175
- Palan pneumatic cu lant cu carlig de suspensie CPA ATEX MINING BASIC
- Capacitate de functionare de 100% si un numar nelimitat de porniri, potrivit pentru aplicatii grele
- Cu aplicatie in minerit, in mediu I M2 Ex h Mb, precum si in mediile II 3G Ex h IIA T4 Gc / II 3D Ex h IIIA T135 °C Dc
- Este insensibil la contaminare, umiditate si medii agresive din exterior
- Palanele sunt compuse din trei componente principale, ceea ce face service-ul usor si ieftin
- Presiune de lucru intre 4 - 6 bar
- Motor cu piston rotativ robust, cu frana reglabila cu arc
- Mentine sarcina in siguranta chiar si in cazul unei defectiuni de presiune
- Cutia de viteze planetara standard, lubrifiata in baie de ulei, cu functionare deosebit de lina, permite o inaltime totala redusa
- Cuplu mare de pornire datorita supapelor de comutare din corpul motorului
- Emisii reduse de zgomot datorita amortizorului de zgomot de dimensiuni mari
- Suspensia forjata si carligele de incarcare sunt din otel de inalta rezistenta la tractiune
- Carligele sunt prevazute cu zavoare de siguranta robuste
- Lantul standard calit si zincat se potriveste perfect cu lantul de sarcina pentru a garanta o miscare lina si precisa a lantului
- Sunt indeplinite toate cerintele standardelor nationale si internationale
- Nota: La cerere, palanele pot fi livrate cu carucior cu angrenaj sau cu carucior pneumatic
Brand:
YALE LIFTING
Specificatii
| CPA ATEX 60-3 | |
| 6000 | |
| 2 | |
| 3 | |
| 5 | |
| 6.5 | |
| 3.2 | |
| 140 |

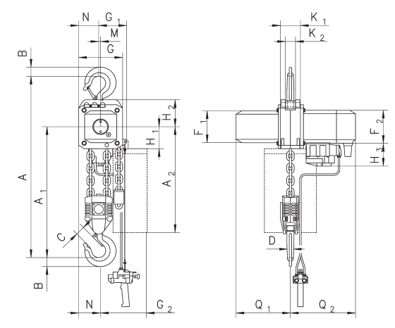
Dimensiuni*
* Va rugam frumos sa selectati, din tabelul de mai jos, dimensiunile detaliate ale modelului prezentat
| Model BASIC | A | A1 | B | C | D | F1 | F2 | G | G1 | G2(13m) | G2(21m) | H1 | H2 | H3 | K1 | K2 | M | N | Q1 | Q2 |
| [mm] | [mm] | [mm] | [mm] | [mm] | [mm] | [mm] | [mm] | [mm] | [mm] | [mm] | [mm] | [mm] | [mm] | [mm] | [mm] | [mm] | [mm] | [mm] | [mm] | |
| CPA ATEX 20-8 | 516 | 286 | 35 | 37 | 24 | 160 | 165 | 220 | 180 | 258 | 278 | 110 | 135 | 115 | 100 | 51 | 50 | 60 | 272 | 325 |
| CPA ATEX 30-6 | 516 | 286 | 35 | 37 | 24 | 160 | 165 | 220 | 180 | 258 | 278 | 110 | 135 | 115 | 100 | 51 | 50 | 60 | 272 | 325 |
| CPA ATEX 50-3 | 681 | 428 | 45 | 46 | 30 | 160 | 165 | 220 | 140 | 218 | 238 | 110 | 135 | 115 | 100 | 51 | 96 | 100 | 272 | 325 |
| CPA ATEX 60-3 | 681 | 428 | 49 | 44 | 30 | 160 | 165 | 220 | 140 | 218 | 238 | 110 | 135 | 115 | 100 | 51 | 96 | 100 | 272 | 325 |
| CPA ATEX 75-2 | 950 | 479 | 60 | 52 | 40/45 | 160 | 165 | 220 | 268 | - | 345 | 110 | 307 | 115 | 92 | 62 | 139 | 136 | 272 | 325 |
| CPA ATEX 100-3 | 1068 | 651 | 60 | 52 | 40/45 | 160 | 165 | 581 | 311 | - | 408 | 110 | 256 | 115 | 92 | 62 | 181 | 291 | 272 | 325 |