Troliu manual PFAFF MWS 1000 kg cu angrenaj cilindric si prindere pe perete
Cod produs: N02800018
- Produs original Pfaff Siberblau - Quality Made in Germany!
- Sarcina utila 1000 kg
- Troliu manual cu prindere pe perete
- Troliu versatil cu cablu pentru ridicarea sarcinilor
- Constructie robusta din tabla de otel
- Troliu cu angrenaj cilindric
- Greutate redusa si design compact
- Posibilitate de folosire a cablului in toate directiile
- Toate piesele sunt zincate
- Lungimea manetei este reglabila
- Tamburul pentru cablu este acoperit suplimentar cu un strat catodic
- Montare simpla si usoara pe perete
- Cablu recomandat EN 12385 FE-znk 17707 sZ-spa
- Cablul nu este inclus in livrare!
Brand:
PFAFF SILBERBLAU GMBH
Specificatii
| MWS 1000 | |
| 1000 | |
| 614 | |
| 20 | |
| 27 | |
| 8 | |
| 3 | |
| 33 | |
| 11 | |
| 27 |

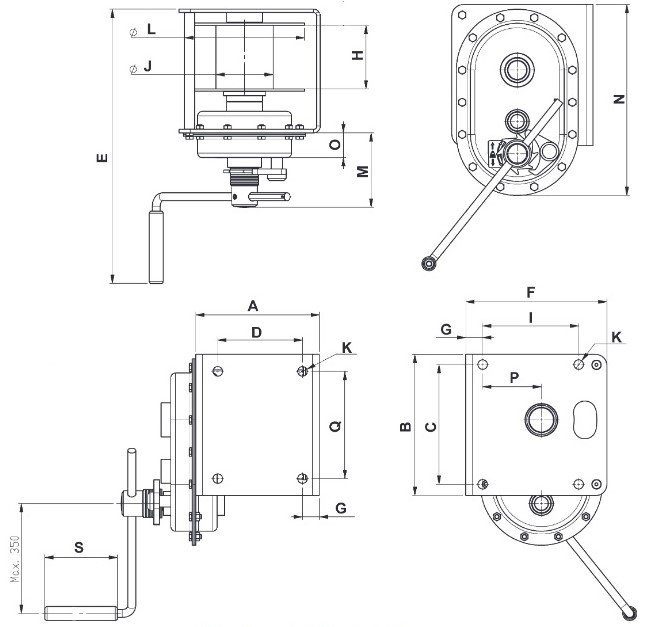
Dimensiuni*
* Va rugam frumos sa selectati, din tabelul de mai jos, dimensiunile detaliate ale modelului prezentat
| Model | A | B | C | D | E | F | G | H | I | ∅ j | K | ∅ L | M | N | O | P | Q | S | Cod comanda |
| [mm] | [mm] | [mm] | [mm] | [mm] | [mm] | [mm] | [mm] | [mm] | [mm] | [mm] | [mm] | [mm] | [mm] | [mm] | [mm] | [mm] | [mm] | ||
| MWS 1000 | 219 | 250 | 212 | 150 | 484 | 250 | 30 | 113 | 170 | 102 | 17 | 212 | 130 | 338 | 44 | 104 | 190 | 129 | N02800018 |
| MWS 1500 | 219 | 250 | 212 | 150 | 484 | 250 | 30 | 113 | 170 | 102 | 17 | 212 | 130 | 338 | 44 | 104 | 190 | 129 | N02800019 |