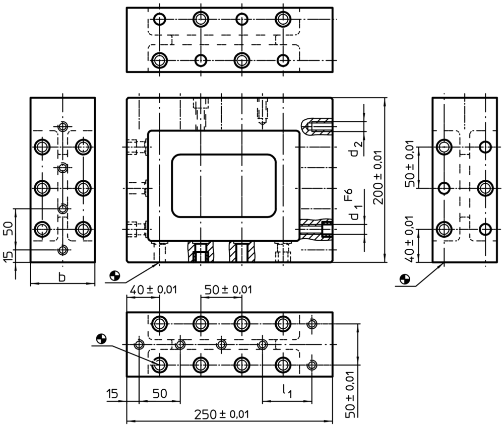
Console | EH 1510.200 - EH 1610.200

Material

  • Fontă gri GG, fosfatată
Pe pagina:  
Afisaj:  
b
d1
d2
Greutate
l1
[mm]
[mm]
[kg]
[mm]

Cod produs

 
b [mm] :
98 mm
d1 [mm] :
16 mm
d2 :
M16
Greutate [kg] :
17 kg
l1 [mm] :
60 mm
buc.
b [mm] :
78 mm
d1 [mm] :
12 mm
d2 :
M12
Greutate [kg] :
15 kg
l1 [mm] :
-
buc.